Art
|
Spaces
|
Scenography
|
Windows
|
Models and prototypes
|
About
|
Contact
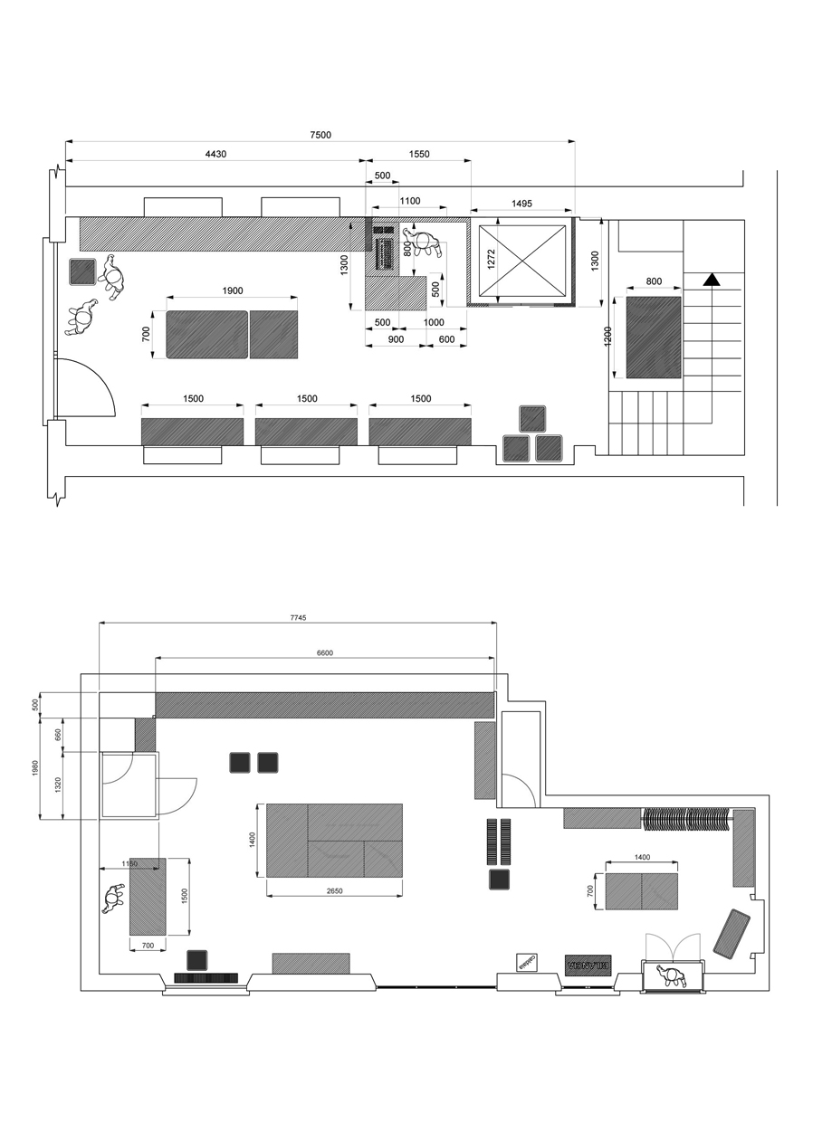
Ideazione e sviluppo di un nuovo retail concept applicato a due spazi pilota.
Milano : 62m2
Mulino Docks Dora
Lodi: 70m2
Playlife
2011
Cliente:
Benetton group
01/09